Resedalaan 35 Waalre € 725.000,- k.k.
Site by WEBtima – Webdesign Eindhoven
Resedalaan 35 Waalre € 725.000,- k.k.
In de woonwijk De Voldijn ligt deze verrassende, instapklare twee-onder-een-kapwoning op een hoekperceel waardoor je geniet van veel vrijheid aan de achterzijde. Het betreft een ideale gezinswoning met veel leefruimte op de begane grond met moderne leefkeuken, vier slaapkamers en hedendaagse badkamer. Doordat de woning op een hoekperceel ligt, is ook de verzorgd aangelegde voortuin enorm ruim.
We lopen via de zijkant van de woning naar de overdekte entree en komen binnen in een fijne hal met een vernieuwde toiletruimte, uitgebreide meterkast, trapopgang naar de verdieping en toegang tot de woonkamer.
Bij binnenkomst in de woonkamer word je verrast door de ruimte. We weten even niet waar we moeten kijken:
het grote zitgedeelte aan de voorzijde, speelse doorloop, ruime eetgedeelte of om de hoek naar de droom leefkeuken?
Allereerst maar naar het zitgedeelte aan de voorzijde. Het ligt net iets verdiept waardoor er een speelse verdeling ontstaat waar je heerlijk kunt relaxen/loungen met hele gezin. Het is erg groot en er zijn ramen over de volle breedte én ook nog een zijraam waardoor het een hele lichte ruimte is.
Omdat de woonkamer ruim is, is gekozen voor een zeer doordachte en akoestische afwerking in het midden van de ruimte waardoor er een goed geheel wordt gevormd tussen het zit- en het eetgedeelte van de woning.
Het eetgedeelte ligt aan de achterzijde en kijkt vrij uit over de groene en grote achtertuin door de grote kunststof pui met openslaande deuren.
En dan komt de verrassende leefkeuken letterlijk om de hoek kijken: een enorm ruime en moderne leefkeuken die van alle gemakken is voorzien.
Onder de ramen richting de achtertuin ligt een groot werkblad (natuursteen) met hieronder volop opbergmogelijkheden.
In het midden van de leefkeuken staat het kookeiland met een Bora inductie kookplaat (2023), spoelbak met een Quooker combi (2023), vaatwasser plus nog een gezellig en vooral ook praktisch zitgedeelte verwerkt in het eiland.
De grote kastenwand aan de andere zijde is volledig ingericht met laden, kasten, apothekerskast, koelkast, vriezer, combi-oven, magnetron en een stoomoven. Er is volop bewegingsruimte waardoor dit werkelijk een droomkeuken is.
Via de keuken is ook de achtertuin bereikbaar.
De gehele begane grond is afgewerkt met een mooie PVC-laminaatvloer met vloerverwarming (2023).
1e Verdieping:
Op de eerste verdieping bevinden zich drie comfortabele slaapkamers en een moderne, vernieuwde badkamer.
Aan de voorzijde ligt de grootste slaapkamer die doorloopt over de volle breedte van de woning. Hierdoor ontstaat een speelse indeling met volop ruimte voor een walk-in-closet. Aan de achterzijde liggen de overige twee slaapkamers met beide fijne raampartijen.
Moderne en ruime badkamer met grote doucheruimte en dubbel wastafelmeubel. Er is een aparte toiletruimte op de verdieping.
2e Verdieping:
Via de overloop komen we bij de technische-/wasruimte met aansluitingen voor wasmachine en droger, de omvormer voor de zonnepanelen (13 stuks) en de CV ketel.
En als bonus ligt op deze verdieping een leuke en grote slaapkamer met volop ramen, een slaapnis en kasten met veel bergruimte onder de schuine kanten.
Tuin:
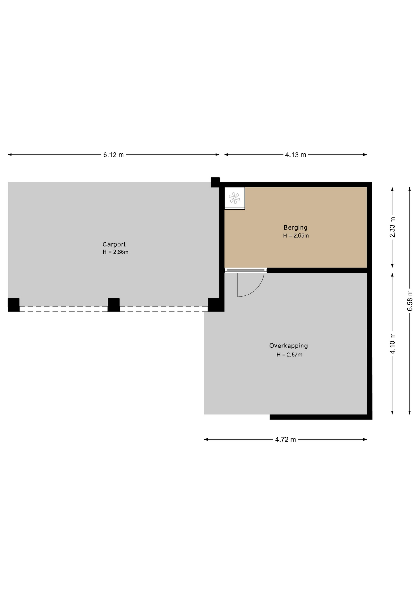
De achtertuin is onderhoudsvrij en verzorgd ingericht! Tegen de woning ligt een groot terras voor de heerlijke zomeravonden. De tuin is voorzien van kunstgras, diverse plantenborders en volwassen bomen. De stenen berging is praktisch voor alle fietsen en tuingereedschap.
De tuin is afgesloten middels twee looppoorten: één aan de voorzijde bij de voordeur en één vanuit de overdekte carport/oprit aan de achterzijde. De woning heeft aan de achterzijde een oprit en een grote overdekte carport waar je gemakkelijk twee auto’s kunt parkeren.
Bijzonderheden:
– Verrassend ruime twee onder een kapwoning gelegen in de gewilde woonwijk De Voldijn;
– Ruime oprit met carport voor het parkeren van meerdere auto’s;
– Goed onderhouden woning;
– Energielabel B;
– Nieuwe badkamer en toiletruimten (2023);
– Zeer veel leefruimte op de begane grond met ruime, moderne leefkeuken;
– Kunststof kozijnen met isolerende beglazing. Alle ramen zijn voorzien van vaste horren. Het raam op zolder is voorzien van extra zonwerend glas en een zonnescreen;
– Ruim hoekperceel waardoor je op meerdere momenten van de dag kan genieten van zowel de zon als de schaduw;
– Ideaal gelegen t.o.v. grote bedrijven uit de regio zoals ASML, HTC en MMC. Uitvalswegen naar het nationale wegennet (A2 en A67) binnen enkele minuten bereikbaar. Het centrum van Eindhoven is goed bereikbaar met fiets, auto en openbaar vervoer.
Ligging
De woning is gelegen in de rustige woonwijk De Voldijn. Een gewilde locatie gezien de afstand tot voorzieningen en groene woonomgeving. Binnen enkele minuten bent u waar u wilt zijn.
Het dorp Waalre ligt aan de zuidelijke rand van Eindhoven en voor intimi ook wel ‘de groenfontein van de Kempen’ genoemd. De dorpskern Den Hof ligt op een paar minuten afstand van de woning en biedt diverse voorzieningen voor de dagelijkse boodschappen zoals een supermarkt, bakker, slager en drogist.
Heeft u kinderen? Dan liggen meerdere basisscholen en kinderopvang op fietsafstand (De Meent, Kindcentrum Aalsterbos , OBS Ekenrooi) en sportaccommodaties zijn er ook voldoende.
Voor een lekker hapje eten kunt u terecht bij Brasserie Hoom, Lunchroom Hof 7, Restaurant Lugar, Brasserie ’t Stationskoffiehuis of het sterrenrestaurant De Treeswijkhoeve in Aalst. In Waalre-dorp kunt u terecht bi Brasserie Meester Keeman, Tapperij de Oude Toren en het sterrenrestaurant EDEN.
De woning is zeer gunstig gelegen t.o.v. ASML, High Tech Campus en MMC. Binnen 5 à 10 minuten bereikt u deze bedrijven. Het nationale wegennet is ideaal gelegen t.o.v. de woning. Binnen 5 minuten bevindt u zich op de A2, A58 en A67 richting de Randstad of Antwerpen.
Eindhoven heeft een eigen vliegveld, veel openbaar vervoer voorzieningen en voor recreatie onder andere een mooie golfbaan (Eindhovensche Golf).
Verkoopprocedure:
Voor informatie over deze woning kunt u contact opnemen met Irene van Aken Makelaardij. Na mondelinge overeenstemming wordt er door partijen een koopovereenkomst getekend. In tegenstelling tot de situatie vóór 1 september 2003 is de koop van een woning (door een consument) pas gesloten als de koopovereenkomst door koper en verkoper is ondertekend. Tot die tijd is er geen rechtsgeldige koop. Dit is door meerdere gerechtshoven bevestigd; indien een koopovereenkomst ten aanzien van een woning niet schriftelijk wordt vastgelegd conform artikel 7:2 BW, is de sanctie nietig.
Meetinstructie:
De woning is zorgvuldig professioneel ingemeten. De Meetinstructie is gebaseerd op de NEN2580. De Meetinstructie is bedoeld om een meer eenduidige manier van meten toe te passen voor het geven van een indicatie van de gebruiksoppervlakte. De Meetinstructie sluit verschillen in meetuitkomsten niet volledig uit, door bijvoorbeeld interpretatieverschillen, afrondingen of beperkingen bij het uitvoeren van de meting.
Aansprakelijkheid:
De verstrekte gegevens in deze brochure zijn met zorg samengesteld. Voor de juistheid van de informatie zijn wij in belangrijke mate afhankelijk van derden en aanvaarden wij, noch de verkoper, enige aansprakelijkheid. De opgegeven maten zijn circa-maten. De verstrekte informatie is van algemene aard, geheel vrijblijvend en is slechts een uitnodiging om in onderhandeling te treden.
Lees meer
| Vraagprijs | € 725.000,- k.k. |
|---|---|
| Aangeboden | 4 feb. 2026 |
| Status | Verkocht onder voorbehoud |
| Aanvaarding | In overleg |
| Soort woonhuis | Woonhuis |
|---|---|
| Soort bouw | Bestaande bouw |
| Bouwjaar | 1973 |
| Soort dak | Zadeldak |
| Woonoppervlakte | 160 m2 |
|---|---|
| Perceel | 403 m2 |
| Inhoud | 572 m3 |
| Aantal kamers | 5 (4 slaapkamers) |
|---|---|
| Aantal badkamers | 1 |
| Voorzieningen | Airconditioning, Glasvezel kabel, Zonnepanelen |
Prijs | € 725.000,- k.k. |
Soort woning | Eengezinswoning |
Type woning | Woonhuis |
Bouwjaar | 1973 |
Perceeloppervlakte | 403 m2 |
Woonoppervlakte | 160 m2 |
Inhoud | 572 m3 |
Aantal kamers | 5 (4 slaapkamers) |
Isolatie | Dakisolatie, Muurisolatie, Vloerisolatie, Dubbelglas, HR glas |
Verwarming | CV ketel Vloerverwarming gedeeltelijk |
Ligging | Aan rustige weg In woonwijk |

Veldhoven – Lange Kruisweg 74
Scroll naar bovenzijde