Jan van Rotselaerlaan 4 Waalre € 1.289.000,- k.k.
Site by WEBtima – Webdesign Eindhoven
Jan van Rotselaerlaan 4 Waalre € 1.289.000,- k.k.
Verscholen in de bossen van Waalre ligt deze vrijstaande woning met garage op een prachtig perceel van maar liefst 3.069 m2. U kunt hier heerlijk anoniem wonen; de privacy wordt optimaal gewaarborgd. In de tuin waant u zich in een landelijk bosgebied, maar toch bevindt u zich op een steenworp afstand van de voorzieningen en grote bedrijven in de regio.
Heeft u altijd al uw eigen woondroom willen realiseren? Dan is dit uw kans! U kunt ervoor kiezen om de huidige woning te renoveren of een geheel nieuwe woning te realiseren. Gesitueerd aan één van de mooiste lanen van Waalre. Prachtige bosrijke omgeving maar ook op zeer korte afstand van de dorpskern. Winkels, restaurants en scholen liggen op fietsafstand.
Kom de locatie bekijken en informeer naar de mogelijkheden!
Indeling
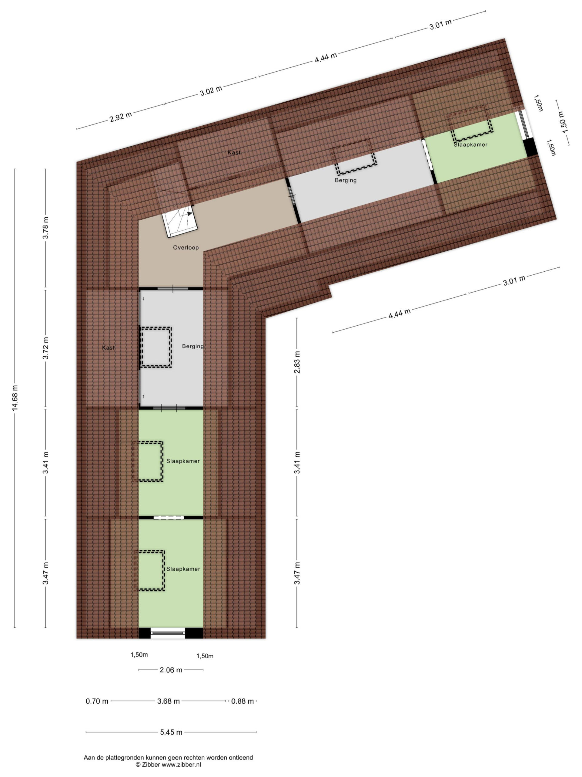
De woning is als een soort boemerang gepositioneerd op het perceel. Vanuit alle kamers is er zicht op de prachtige bosrijke omgeving. Het leefgedeelte van de woning is volledig gesitueerd op de begane grond. De hal geeft toegang tot de woonkamer, keuken, toiletruimte, vier kamers (waarvan drie goede slaapkamers) en de badkamer.
Op de eerste verdieping is voornamelijk een zolderruimte gecreëerd, maar het biedt mogelijkheden voor het creëren van meerdere kamers.
Bijzonderheden:
– Verscholen in de bossen van Waalre vrijstaand landhuis met garage;
– Gelegen op een riant perceel; maar liefst 3.069 m2;
– Gesitueerd aan één van de mooiste lanen van Waalre;
– Unieke kans om uw eigen woondroom te realiseren;
– Optimale privacy wordt gewaarborgd;
– Basisschool, supermarkt en overige voorzieningen op fietsafstand;
– Ideaal gelegen t.o.v. bedrijven uit de regio zoals ASML, HTC en MMC. Uitvalswegen naar het nationale wegennet (A2 en A67) binnen enkele minuten bereikbaar. Het centrum van Eindhoven is goed bereikbaar met fiets, auto of openbaar vervoer;
– Aanvaarding direct.
Ligging:
Midden in de Brabantse binnenlanden op korte afstand van Eindhoven ligt dit ruime perceel met vrijstaande woning waar u optimaal geniet van rust en privacy. De woning is gelegen tegen de bosrand in een rustige wijk met vrijstaande woningen op ruime percelen.
Zeer centraal gelegen t.o.v. de dorpskern van Aalst, het wegennet en het centrum van Eindhoven. Binnen enkele minuten bent u waar u wilt zijn.
De dorpskern van Aalst beschikt over allerlei voorzieningen die u kunnen voorzien in de dagelijkse behoeften zoals, een supermarkt, bakker, slager, kapper, drogist e.d.
Heeft u kinderen? Dan liggen diverse basisscholen op fietsafstand en sportaccommodaties zijn er ook voldoende.
Voor een lekker hapje eten kunt u terecht bij Meester Keeman, Het Stationskoffiehuis, Sterrenrestaurant Eden en brasserie De Oude Toren in Waalre-dorp en in Aalst bij Brasserie Hoom, Restaurant Lugar of het sterrenrestaurant De Treeswijkhoeve.
De woning is zeer gunstig gelegen t.o.v. ASML, HTC en MMC. Binnen 5 minuten bereikt u deze bedrijven.
Het nationale wegennet is ideaal gelegen t.o.v. de woning. Binnen 5 à 10 minuten bevindt u zich op de A2 en A67.
Verkoopprocedure:
Voor informatie over deze woning kunt u contact opnemen met Irene van Aken Makelaardij. Na mondelinge overeenstemming wordt er door partijen een koopovereenkomst getekend. In tegenstelling tot de situatie vóór 1 september 2003 is de koop van een woning (door een consument) pas gesloten als de koopovereenkomst door koper en verkoper is ondertekend. Tot die tijd is er geen rechtsgeldige koop. Dit is door meerdere gerechtshoven bevestigd; indien een koopovereenkomst ten aanzien van een woning niet schriftelijk wordt vastgelegd conform artikel 7:2 BW, is de sanctie nietig.
Meetinstructie:
De woning is zorgvuldig professioneel ingemeten. De Meetinstructie is gebaseerd op de NEN2580. De Meetinstructie is bedoeld om een meer eenduidige manier van meten toe te passen voor het geven van een indicatie van de gebruiksoppervlakte. De Meetinstructie sluit verschillen in meetuitkomsten niet volledig uit, door bijvoorbeeld interpretatieverschillen, afrondingen of beperkingen bij het uitvoeren van de meting.
Aansprakelijkheid:
De verstrekte gegevens in deze brochure zijn met zorg samengesteld. Voor de juistheid van de informatie zijn wij in belangrijke mate afhankelijk van derden en aanvaarden wij, noch de verkoper, enige aansprakelijkheid. De opgegeven maten zijn circa-maten. De verstrekte informatie is van algemene aard, geheel vrijblijvend en is slechts een uitnodiging om in onderhandeling te treden.
Lees meer
| Vraagprijs | € 1.289.000,- k.k. |
|---|---|
| Aangeboden | 8 feb. 2026 |
| Status | Beschikbaar |
| Aanvaarding | Direct |
| Soort woonhuis | Woonhuis |
|---|---|
| Soort bouw | Bestaande bouw |
| Bouwjaar | 1959 |
| Soort dak | Zadeldak |
| Woonoppervlakte | 171 m2 |
|---|---|
| Perceel | 3.069 m2 |
| Inhoud | 635 m3 |
| Aantal kamers | 7 (3 slaapkamers) |
|---|---|
| Aantal badkamers | 1 |
| Voorzieningen | alarminstallatie, Rookkanaal, Dakraam |
Prijs | € 1.289.000,- k.k. |
Soort woning | Landhuis |
Type woning | Woonhuis |
Bouwjaar | 1959 |
Perceeloppervlakte | 3.069 m2 |
Woonoppervlakte | 171 m2 |
Inhoud | 635 m3 |
Aantal kamers | 7 (3 slaapkamers) |
Isolatie | Dakisolatie |
Verwarming | CV ketel |
Ligging | Aan rustige weg Vrij uitzicht In bosrijke omgeving |

Waalre – Azalealaan 6
Scroll naar bovenzijde